Church Lighting Design – Case Study – St Andrews (DRAFT for REVIEW)

Image#1 BEFORE

Image#2 AFTER

There were two stages to this church lighting design project, three years apart.

Stage 1 of Project (2020): Upgrading the (internal) Fixed Lighting System to LEDs & Communion Table Area Improvement

Fixed Lighting System Upgrade

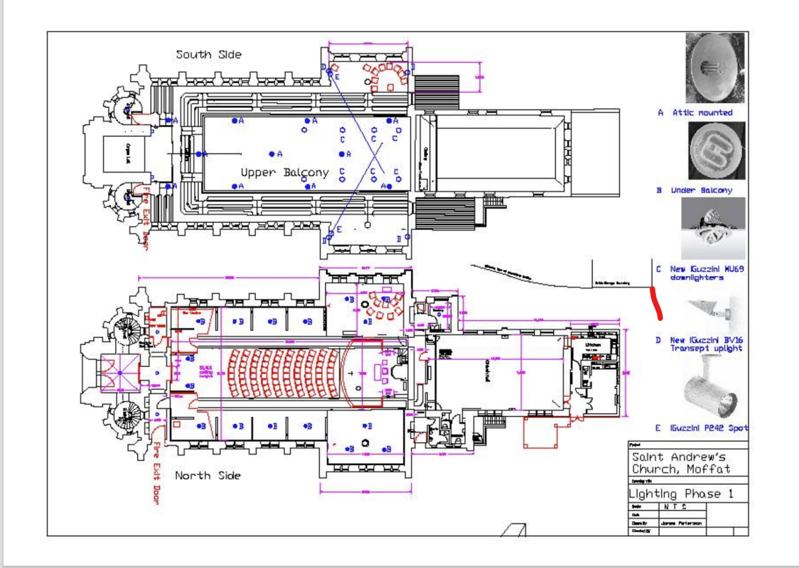
Image#3 – Image Credit: James Paterson

The existing luminaires were old Edison Swan 460mm diameter industrial metal bodies with a mixture of 300w tungsten filament and 70w metal halide control gear lamps in the attic ceiling. The luminaires in the ceiling below the balcony had the same body profile at 370mm diameter, but had previously been converted to house the body of a circular 38 watt 2D square fluorescent.


The luminaire bodies were separate from the ceiling mounted glass diffusers and could be removed without disturbing the diffuser. The 3 luminaires down the centre appeared in poorer condition than the side isles. 150w MBI on pendant E27 caps.


The balcony ceiling units were accessed by lifting short sections of floor boards between the balcony pews. These units were not individually isolatable as has been provided in the attic. No allowance had been made in this phase for this facility.


The replacement of the luminaire light source, with an LED option was selected, resulting in considerable savings in energy use and carbon emissions. Since lower wattages were needed to effect the same levels of illumination, this also reduced the load on the lighting circuits. However, there was a desire to increase illumination levels especially in the communion table area.


It was suggested that, the existing general lighting within the church area be upgraded to current standards with modern LED lamp types replacing those currently in use. This incorporated the re-use of the existing luminaire bodies and glass diffusers. Other existing lighting was amended to suit the future alterations.


Likewise the existing lighting below the balcony was upgraded with 3,000K LED as follows:
Old luminaires removed and debris vacuumed out from all 16 under balcony diffusers.
Removal of old gear trays and plastic bodies.
Terminal block and led drivers fixed to plastic body and refixed to old industrial metal body.
17w version including DALI control.


Initial consideration was to install terminal block, driver and 3xx mm diameter LED disk from iGuzzini BOS range. 27w giving 4,300 lumens into old unit. Time consuming but 27w operation managed by church fabric fellowship. 17w (18.2 circuit watts) version at 1976 lumens disk is 240mm dia fitted over existing ceiling mounted diffuser without the need to adapt.
Visually brighter than existing 2D units.

Communion Table Area Improvement

The communion table area needed about 200 lux and there were already 4 ventilation points in the ceiling above.
The hole measured 235 to 240mm and an adapter plate was made to fill the gap to support new downlighters requiring 196mm hole.
Pixel Plus downlighters MU 64 or 70 equivalent in LED spotlight with 18/36/420 beam Probably 180 or 360 needed MU 69 with DALI. Drop to floor below = 13.5 metres, 4 essential plus 2 more.
Installed source was 150w PAR38 and location was just less than 1200 splay recommendation.


Upper transept roof woodwork needed brightening (it was originally illuminated years before).
Original spotlights (disconnected) for pulpit and communion table were reinstated with modern narrow angle circular symmetric equivalent to 150w CDM/T or 3000K LED) 2 required – about 10m mounting with 14 to 15 metres throw to dias.
Matching asymmetric CDM/T to reinstate old disconnected upper transept area uplight flood Possibly 4 needed but start with 1 in each transept opposite to spot.
iGuzzini iTeca BV16 28w LED 2280 lumens.
Wall wash PO14 quoted (may not wash complete ceiling).

The potential for energy reduction for this project was significant, replacing numerous tungsten, metal halide and CFL legacy lamp sources with contemporary LEDs with sympathetic CCTs.
Typically difficult access for maintenance presented in this interior also benefitted greatly from the longevity of LED sources.


Stage 2 of Project (2023) Proving that the previously upgraded lighting met emergency lighting requirements and did not need to be replaced by a completely new lighting system.  

The proposal involved the removal all 16 under balcony iGuzzini led discs, to which I objected (as one of three trustees overseeing the project).

As a result, I produced a calculation showing that 5 or 6 of the under balcony units would meet the minimum illumination of 0.5 lux, in the main body of the church, if the existing iGuzzini discs were fitted with emergency backup packs.

In LR PRO’s ability to import data and apply it to detailed calculations was evident accompanied by the dimming feature to simulate the reduce output in emergency mode of operation.

Using Lighting Reality, and since there was little need to allow for interior wall or ceiling reflections, I produced a “worst case” interior scenario.

Having enjoyed using the software in a manner which I had never used before, I continued to apply the calculations to other parts of the church. The final version of the attached Autocad layout (Image. #3) was produced by copying 7 separate calculation grids into one drawing.

Image#3 – Image Credit: James Paterson

The complex architectural features and recesses of the interior negate the contribution from inter reflected component so a direct incident lighting level was acceptable.
LR PRO’s DXF export options enabled the final combination with the CAD drawing to produce a technically complete presentation.

Both the architect and the contractor were impressed and accepted my amendments to the proposal. As a result, none of the previously installed iGuzzini units were required to be replaced.

Our thanks to James H Paterson BA(Hons) CEng MCIBSE FILP (retired) for submitting this case study, as well as all the supplying all the images.

If you have a lighting design, created using LR PRO that you would be happy for us to share with our audience, as inspiration/learning, we’d love to hear from you. All case study material submitted to us during 2026 will be in with a chance of winning….

Terms & Conditions

The Lighting Reality Team

To keep up to date with development news and all new photometry added to Lighting Reality, click HERE.

Follow Lighting Reality on LinkedIN.

This site uses cookies to offer you a better browsing experience. Please click on accept to continue on our website, or click on More Info to find out how we use cookies and your options.